Algemeen
De zaal heeft maximaal 174 stoelen, waarvan 90 op een mobiele tribune. Afhankelijk van het aantal verkochte zitplaatsen wordt de tribune welof niet geplaatst.
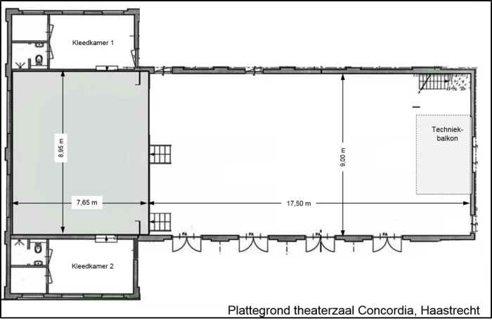
Het licht en geluid worden bediend vanaf het regiebalkon op 2.80 meter hoogte achter in de zaal. Tenzij uitverkocht, kunnen er op verzoek geluidsplaatsen in de zaal worden gecreëerd. Technische vrijwilligers zijn beschikbaar voor licht- en geluidstechniek en het nodige sjouwwerk.

